Квартиры свободной планировки с окнами в пол и ниши под кондиционеры – проект многоквартирного дома со встроенными нежилыми помещениями презентовали в управлении архитектуры, строительства и градостроительства горисполкома в четверг, 2 марта.
Как сообщает "Вечерний Гродно", многоэтажку хотят разместить на участке между областным клиническим центром «Психиатрия-наркология», улицами Магистральной и Обухова и новым административным зданием на Магистральной, 8.
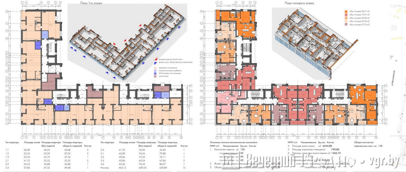
Сейчас территория свободна от застройки.
Дом будет состоять из трех секций и иметь 10 этажей. На первом уровне предусмотрены встроенные нежилые помещения.
Здесь разместятся офисы, помещения товарищества собственников, колясочные, помещения мойки лап животных, совмещенные с помещением уборочного инвентаря, комнаты матери и ребенка, электрощитовая.
В высотке – 135 квартир от 36 до 74 кв. м. общей площадью чуть более 6 220 кв. м. Жилые помещения – одно-, двух- и трехкомнатные, свободной планировки. Высота потолков – 2,7 метра. Для защиты от внешних звуков в квартирах установят шумозащитные окна, они будут в пол – от перекрытия до перекрытия без перемычек.
На фасаде дома под каждую квартиру сделают короба для кондиционеров. Расположат их у окон общих комнат.

Фасад высотки будет смотреть на Магистральную улицу. Его "оденут" в клинкерный кирпич и композитные панели с интегрированной подсветкой.
Дворовую территорию огородят, войти можно будет через калитки, оборудованные домофонной связью. По периметру двора оборудуют парковки на 138 мест. К слову, изначально рассматривали вариант – сделать под всем домом подземный паркинг, однако от этой идеи отказались – нецелесообразно.

К слову, участок под строительство элитного дома купила брестская компания ОАО «Полесьежилстрой» осенью прошлого года. Изначально здесь предусматривалась общественная застройка. Но по согласованию с Минском назначение территории поменяли.
Начать строительство фирма планирует уже этим летом. Закончат работы максимум через год.
Тем временем общественное обсуждение проекта продолжается, свои замечания и предложения можно направлять по 18 марта.
Пока в Беларуси мороз и снежные сугробы, появляется прекрасная возможность поностальгировать по лету и тёплым денькам.
В первый февральский день в Гродно произошло ДТП, в котором пострадал пешеход.
На вопрос отвечает адвокат юридической консультации Железнодорожного района Гомеля Евгений Курнасенко.